施工実績

  • 耐震リフォーム
  • 断熱リフォーム
  • リビング
  • 和洋室
  • 玄関
  • 一戸建て
  • 500万~1000万
  • 高崎市

大切な家族と安心して暮らせる住まいへ

大切な家族と安心して暮らせる住まいへ

施工前

昔ながらの和風建築で部屋が細かく仕切られていているので、洋室化しリビングを広くしたい。

地震に強く、暑さ寒さに対応した住まいにしたい。

 

施工前写真

  • 大切な家族と安心して暮らせる住まいへ

    外観

  • 大切な家族と安心して暮らせる住まいへ

    二間続きの和室

  • 大切な家族と安心して暮らせる住まいへ

    和室

  • 大切な家族と安心して暮らせる住まいへ

    寝室

  • 大切な家族と安心して暮らせる住まいへ

    玄関

  • 大切な家族と安心して暮らせる住まいへ

    階段

図面イメージ

  • 大切な家族と安心して暮らせる住まいへ

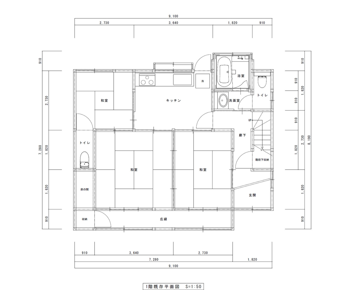
    Befor 1階平面図

  • 大切な家族と安心して暮らせる住まいへ

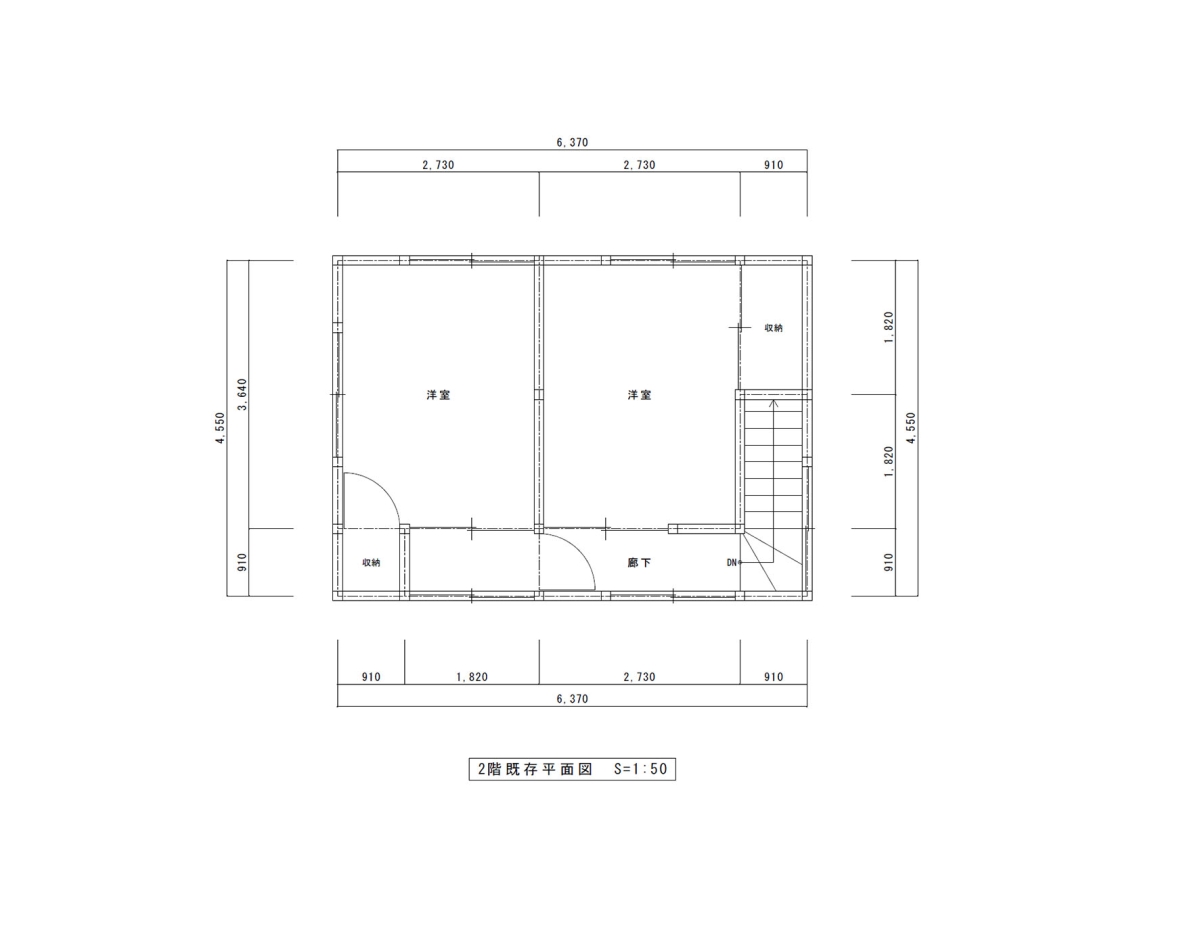
    Befor 2階平面図

  • 大切な家族と安心して暮らせる住まいへ

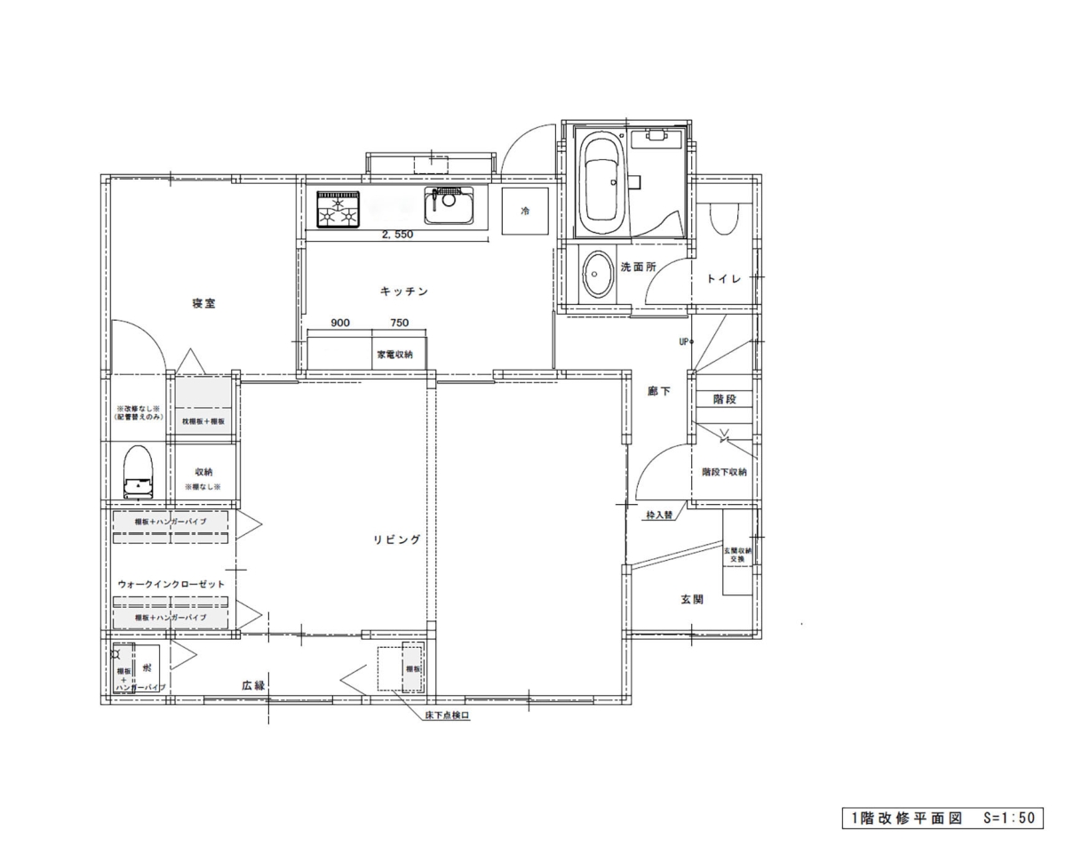
    After 1階平面図

  • 大切な家族と安心して暮らせる住まいへ

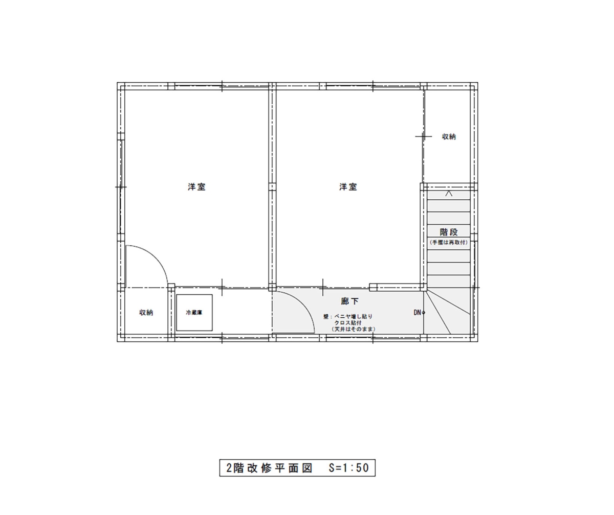
    After 2階平面図(緑部:内装リフォーム)

  • 大切な家族と安心して暮らせる住まいへ

    上部構造評点 現状

  • 大切な家族と安心して暮らせる住まいへ

    上部構造評点 耐震補強後

施工後

耐震工事

梁補強

筋交い追加

柱頭金物

柱脚金物

断熱工事

床断熱

壁断熱

天井断熱

LD、寝室、2階収納

LD 二間続きの和室が一つの空間になりました。

敷居がなくなりフローリングは

ペットにやさしいものを採用しました。

ウォークインクローゼットを新設し

収納不足を解消しました。

寝室 北側で暗く寒かった部屋が、

明るく温度差に左右されない快適空間になりました。

2階の収納内で耐震補強をしました。

外観、玄関、階段

外観 掃き出し窓の開口幅を小さくしたことで

壁量が増え地震に強くなりました。

玄関 シューズクローゼットを入れ替えました。

内窓を設置し外気温に左右されにくい玄関に

なりました。

階段 内装をリフォームしました。

壁材を見直したことで、掃除の手間が減り、

暮らしにゆとりが 生まれました。

リフォームのポイント

リフォームのポイント

 6畳と8畳の和室続間と広縁の一部を間取り変更し、広いリビングに生まれ変わりました。ペットにやさしいフローリングを採用したことで愛犬ちゃんの足腰への負担も軽減できました。収納も増やし、北側寝室も洋室へリフォームしました。
 耐震補強工事の他に天井・壁・床の断熱工事も行い、サッシもLow-E複層ガラスを採用。暑さ寒さだけではなく、雨音に悩まされることも減りました。
 2階の間取りは変更していませんが階段の内装をリフォームし、京壁から落ちる砂の掃除からも解放されました。明るい雰囲気になり、2階へ向かうたびに気持ちまで軽やかになりました。

リフォーム情報

建物概要

延べ床面積:94.41㎡、構造:木造2階建て、既存築年:1977年(築48年)

工期:2024年10月~2025年1月、工事費:910万円

使用商品

換気扇:三菱電機、ルームエアコン:パナソニック、窓:YKKAP/プラマードU、

扉・収納扉:ダイケン、玄関収納:ダイケン、フローリング:イクタ、天井クロス:シンコール、壁クロス:シンコール

費用詳細

LD:265万円、広縁:70万円、寝室:94万円、廊下:60万円、サッシ:30万円

断熱工事:16万円、耐震工事:128万円、その他:247万円、総額:910万円

CONTACT お問い合わせ・お見積り

リフォームに関するご相談・お悩み、お見積り依頼は、
お気軽にお問い合わせください。
定休日の訪問見積・来店相談はご予約ください。

0120-827-026

[営業時間]8:00 ~ 17:00
[定休日]土曜・日曜・祭日